GREEN LIGHT FOR THE GABLES RESIDENTIAL DEVELOPMENT OPPORTUNITY

09 April 2026

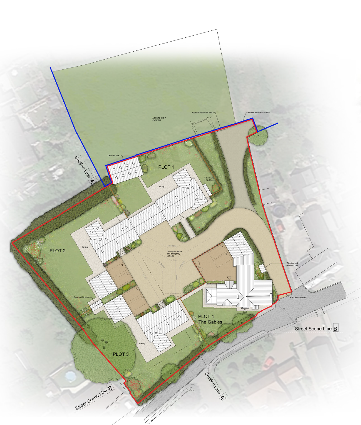
Our development land team has secured detailed planning permission for three residential properties and the renovation and extension of an existing farmhouse in Sharnford.

The Gables sits on a 1-acre site in the South Leicestershire village and currently comprises a large three-bedroom farmhouse in need of modernisation as well as gardens, disused farmyard, and outbuildings. The building plots and land are available for sale now for offers in the region of £975,000.

Our Assistant Land Agent, Tom Knowles has co-ordinated the planning process. Tom comments: “The Gables is located in the heart of the village and is a classic English farmhouse. This planning application sought to restore the property’s traditional character with a sympathetic renovation and extension while also bringing the disused yard back into productive use by creating additional family homes.

“Working with the landowner, our approved proposal will create a cul-de-sac development in the yard comprising three, three-bedroom homes. Each is designed with contemporary detailing to align with the farmhouse appearance, and benefits from private parking and generous rear gardens,” adds Tom.

Sharnford is a charming rural location with independent village store, primary school, and two public houses yet has excellent transport links to Leicester and Hinckley via the M69 and A5.

Tom continues: “Gaining this consent has required a strong collaborative process and will establish a small new community in the village. The Gables offers an ‘oven ready’ package, including all necessary surveys, so we anticipate a high level of interest from boutique residential developers.”